LOADING

39 Kay Crescent Centre Wellington (Fergus), Ontario N1M 0A4

4 Bedroom 3 Bathroom 2000 - 2500 sqft
Fireplace Central Air Conditioning Forced Air

$889,900

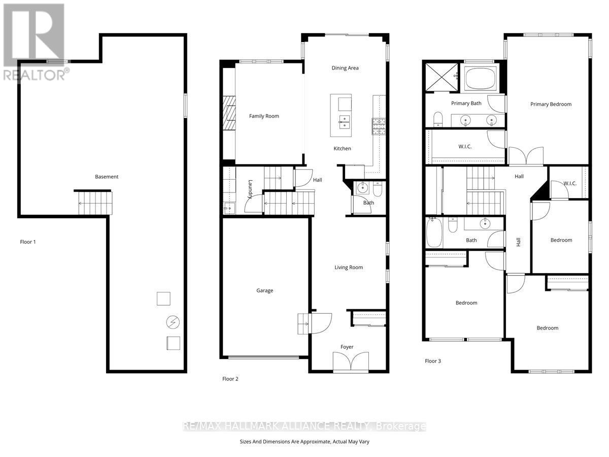
Step into comfort and style in this beautifully upgraded 4-bedroom, 3-bath detached home in Fergus. Backing onto the peaceful green space of Forfar Park and just steps from the Elora Cataract Trail, this home offers the perfect blend of nature and modern living.The main floor features an open-concept layout with 9-foot ceilings, rich hardwood flooring, oak staircase and striking custom woodwork throughout. The chefs kitchen stands out with sleek tuxedo-style cabinetry, premium finishes, Wolf Gas Stove, and a functional design ideal for entertaining. Gather in the family room around the cozy gas fireplace, framed by custom built-in's and flooded with natural light. Upstairs, four generously sized bedrooms provide ample closet space and plush broadloom, with the primary suite offering a luxurious 5-piece ensuite with soaker tub, double vanity, and walk-in shower. The unfinished basement offers endless potential - whether you're dreaming of a home gym, recreation space, or in-law suite, it's a blank canvas ready for your personal touch. Step outside to your own backyard retreat, featuring a hot tub, children's play area, and lush green space with no rear neighbours! (id:50947)

Open House

This property has open houses!

November
9
Sunday
Starts at:

2:30 pm

Ends at:

3:30 pm

Property Details

MLS® Number X12426821
Property Type Single Family
Community Name Fergus
Features Conservation/green Belt, Sump Pump
Parking Space Total 3
View Type View

Building

Bathroom Total 3
Bedrooms Above Ground 4
Bedrooms Total 4
Amenities Fireplace(s)
Appliances Garage Door Opener Remote(s), Water Softener, Blinds, Dishwasher, Dryer, Garage Door Opener, Microwave, Range, Stove, Water Heater, Washer, Refrigerator
Basement Development Unfinished
Basement Type Full (unfinished)
Construction Style Attachment Detached
Cooling Type Central Air Conditioning
Exterior Finish Brick, Steel
Fireplace Present Yes
Fireplace Total 1
Flooring Type Hardwood, Ceramic, Carpeted
Foundation Type Poured Concrete
Half Bath Total 1
Heating Fuel Natural Gas
Heating Type Forced Air
Stories Total 2
Size Interior 2000 - 2500 Sqft
Type House
Utility Water Municipal Water

Parking

Garage
Tandem

Land

Acreage No
Fence Type Fenced Yard
Sewer Septic System
Size Depth 119 Ft
Size Frontage 32 Ft
Size Irregular 32 X 119 Ft
Size Total Text 32 X 119 Ft

Rooms

Level Type Dimensions
Second Level Primary Bedroom 5.91 m x 3.77 m
Second Level Bedroom 2 3.83 m x 4.37 m
Second Level Bedroom 3 3.62 m x 4.03 m
Second Level Bedroom 4 3.36 m x 2.6 m
Main Level Living Room 4.26 m x 3.44 m
Main Level Family Room 4.68 m x 3.67 m
Main Level Kitchen 3.77 m x 4.02 m
Main Level Dining Room 3.77 m x 2.57 m
Main Level Laundry Room 3.26 m x 2.24 m

https://www.realtor.ca/real-estate/28913397/39-kay-crescent-centre-wellington-fergus-fergus

Interested?

Contact us for more information


Generating Captcha

Amanda Moco
Salesperson

(647) 632-7653
www.amandamoco.com/
https://www.facebook.com/AmandaMocoRealEstate
https://twitter.com/AmandaCMoco
https://www.linkedin.com/in/amandamocorealestate/

RE/MAX Hallmark Alliance Realty
515 Dundas St West Unit 3a
Oakville, Ontario L6M 1L9

(905) 257-7500

Your Favourites

 

No Favourites Found